3.1. La chiesa
Continuando l'osservazione della mappa Braun Hogemberg, sul lato occidentale del torrente spicca per imponenza una chiesa
a pianta circolare nell'angolo di sudovest della cinta, che sembra avere due campanili (quasi fossero due minareti);
si trova sul sito dell'attuale Santa Maria del Quartiere.
La chiesa odierna presenta pianta esagonale, contro ogni dettame liturgico dell'epoca. Risulta fondata tra il 1604 e il
1619 all'interno delle mura cittadine, nel Quartiere destinato all'acquartieramento delle truppe (donde il nome),
che per molto tempo restò una zona non edificata).
Ma, con tutta evidenza, la chiesa di forme manieriste secentesche insiste su un edificio preesistente. Fosse corretta
la mia intuizione, cioè che Oltretorrente racchiuda Victoria, allora Santa Maria del Quartiere insisterebbe sulla chiesa
federiciana di San Vittore.
3.2. Il Toponimo
Uno dei viali che costeggiano a sud il quartiere si chiama a tutt'oggi "Viale Vittoria" e plausibilmente costeggiava
l'interno delle mura sul lato occidentale del torrente.
3.3. Le fondazioni della cortina muraria
Una scelta logica, di economia e di buon senso, degli architetti parmensi del XV Secolo fa supporre che le mura di
Oltretorrente abbiano almeno in parte utilizzato il tracciato e le fondazioni di quelle federiciane.
Il già menzionato viale Vittoria, provenendo da nord perpendicolarmente alla giacitura del decumano maggiore,
dal cui prolungamento occidentale si distacca 500m circa dal Ponte di Mezzo, dopo 250m circa piega verso sudest formando
un angolo di 135°; precisamente l'apertura dell'angolo interno di un ottagono regolare.
Un'ipotesi verosimile è che gli architetti federiciani abbiano immaginato una città a pianta regolare ottagonale con
distribuzione radiale delle vie, confluenti su un piazzale con funzioni sia civiche che militari, su cui si affacciassero
sia la chiesa cattedrale che il Palazzo, sedi del potere imperiale e di quello ecclesiastico.

L'esagono di Santa Maria del Quartiere (ma alcune mappe ottocentesche, come questa che qui riporto del 1844, la descrivono
a pianta ottagonale) affaccia sul piazzale intitolato oggi a Guido Picelli, che è presente anche nella mappa cinquecentesca.
Ho provato a disegnare un ottagono sopra il tracciato stradale attuale, preso da Google Map. Ho imposto due vincoli:
che uno spigolo e due lati coincidessero con la giacitura di Viale Vittoria e che il centro del poligono ricadesse entro
il perimetro del piazzale.
3.4. Le strade

L'esito di questo primo sommario tentativo è qui raffigurato, ed è già abbastanza soddisfacente, dal momento che la gran
parte dell'impianto viario moderno sembra coincidere con la giacitura degli otto assi e delle otto bisettrici. Inoltre,
ben sette delle eventuali otto porte di cui parla Kantorowicz (verosimilmente al centro di ciascun lato), incontrano
il tracciato di una via attuale.
Asse principale dell'ottagono risulta l'attuale Via della Costituente, con via Spalato che è il suo prolungamento ideale
oltre l'edificio della Scuola Cocconi. Anche questo, come il Decumano maggiore di strada della Repubblica, è orientato
lungo una direttrice da ovest a est inclinata di 16° verso sud.
La lunghezza del lato dell'ottagono risulta all'incirca di 200m, per un'estensione totale della città di circa 25 ettari.
Una superficie modesta, ma non di molto inferiore a quella della Parma di epoca romana,
e forse sufficiente per lo scopo militare.
3.5. Le fondazioni degli edifici
Aggiungo qui una mia intuizione, assai meno verificabile delle altre.
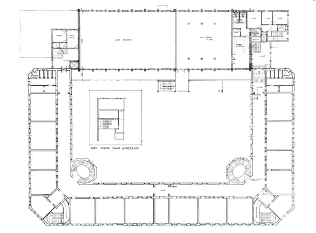
Sul lato occidentale di piazzale Picelli affaccia uno degli ingressi della scuola Cocconi, edificio in forme architettoniche
medievaleggianti, costruito su disegno dell'Arch. Moderanno Chiavelli nel 1903.
L'edificio appare assai singolare: manca difatti di uno scalone centrale, elemento funzionale assai consueto negli edifici
ad uso pubblico dal Settecento in poi.
Sono invece presenti due scale a chiocciola racchiuse in torri ottagonali, disposte su due degli angoli interni del cortile,
come fosse una specie di Castel del Monte rovesciato.

Qui ne riporto la pianta del piano terra, estratta dal Catalogo delle Proprietà Comunali e ottenuta per gentile interessamento
degli uffici della Società Parma Infrastrutture.
La mia ipotesi (o dovrei dire illazione) è che l'architetto Chiavelli abbia edificato su tracce o fondazioni preesistenti,
e da queste abbia anche tratto ispirazione per la soluzione originale (per l'epoca moderna) delle due torri-scale
in corrispondenza degli spigoli a smusso su cui aprono gli accessi.
Le supposte fondazioni riutilizzate sarebbero dunque nella mia ipotesi quelle del Palazzo Imperiale di Victoria,
affacciato sulla piazza d'Armi centrale della città.
In tal caso, non sarebbe casuale che le misure esterne della scuola Cocconi e quelle del suo cortile interno siano
assai vicine a quelle del Palazzo Imperiale all'Arena, che era stato requisito dai parmigiani e della cui confisca
ipotizzo che Federico volesse ottenere un risarcimento morale, costruendo per sé un Palazzo non inferiore per dimensioni.
continua:
4. Fonti documentali e indagini archeologiche
consulta:
Bibliografia
torna a: telodicosulserio